分譲地情報

所在地 福山市駅家町
地目 宅地
学区 駅家小学校から1.54km
交通 JR万能倉駅から徒歩14分
都市計画 市街化調整区域
用途地域 -
建ぺい率 60%
容積率 200%
土地権利 所有権
地勢 平坦
制限 -
開発許可
設備 上水道・下水道・電気
引渡 相談
取引態様 売主
条件等 建築条件付

※建築条件付・・・土地売買契約締結後3ヶ月内にユキハウスと建物工事請負契約を締結する事を条件に販売します。この期間内に建物工事請負契約が締結されなかった場合、土地売買契約は白紙となり受領した手付金の金銭は全てお返しします。

[宅地-1]Image-Plan

土地価格 ¥9300000-
建物価格 ¥17,900,000-
(税込¥19,690,000-)
土地+建物価格 ¥27,200,000-
(税込¥29,920,000-)
敷地面積 189.57㎡/57.34坪
延床面積 69.56㎡/21.04坪
施工面積 86.17㎡/26.06坪
建物情報 ■平屋 □2LDK
・ウッドデッキからの玄関
・オープンウィンの窓
・リモコンニッチ
・独立洗面化粧台

※金額に付帯工事・事務費・諸経費・外構費等は含まれておりません。

[宅地-2]Image-Plan

土地価格 ¥9,300,000-
建物価格 ¥17,500,000-
(税込¥19,250,000-)
土地+建物価格 ¥26,800,000-
(税込¥29,480,000-)
敷地面積 189.59㎡/57.35坪
延床面積 102.70㎡/31.93坪
施工面積 104.78㎡/32.97坪
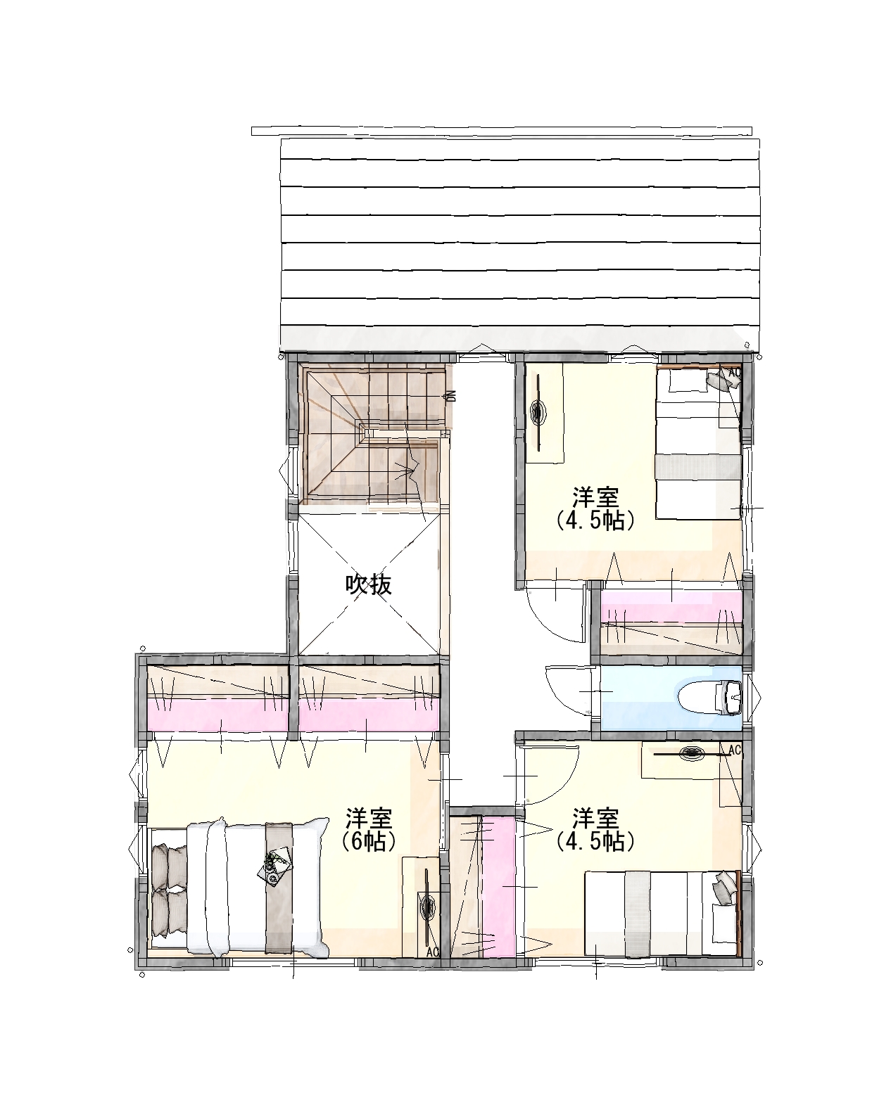
建物情報 ■2階建 □2LDK
・家族用玄関
・ファミリークローク
・パントリー
・リモコンニッチ
・独立洗面化粧台
・2階トイレ
・子供部屋は将来的に2部屋改修OK

※金額に付帯工事・事務費・諸経費・外構費等は含まれておりません。

[宅地-5]Image-Plan

土地価格 ¥9,600,000-
建物価格 ¥18,100,000-
(税込¥19,910,000-)
土地+建物価格 ¥27,700,000-
(税込¥30,470,000-)
敷地面積 198.36㎡/60.00坪
延床面積 109.30㎡/33.06坪
施工面積 112.33㎡/33.97坪
建物情報 ■2階建
・家族用玄関
・洗面脱衣室兼ランドリールーム
・パントリー
・デザイン階段
・リモコンニッチ
・造作TV台

※金額に付帯工事・事務費・諸経費・外構費等は含まれておりません。
所在地 福山市駅家町万能倉
地目 宅地
学区 駅家小学校から1.7km
交通 JR万能倉駅から徒歩17分
都市計画 市街化調整区域
用途地域 -
建ぺい率 60%
容積率 200%
土地権利 所有権
地勢 平坦
制限 -
開発許可
設備 上水道・電気
引渡 相談
取引態様 売主
条件等 建築条件付

※建築条件付・・・土地売買契約締結後3ヶ月内にユキハウスと建物工事請負契約を締結する事を条件に販売します。この期間内に建物工事請負契約が締結されなかった場合、土地売買契約は白紙となり受領した手付金の金銭は全てお返しします。

[宅地-3]Image-Plan

土地価格 ¥8,300,000-
建物価格 ¥17,700,000-
(税込¥19,470,000-)
土地+建物価格 ¥26,000,000-
(税込¥28,600,000-)
敷地面積 202.25㎡/61.18坪
延床面積 106.81㎡/32.31坪
施工面積 115.83㎡/35.03坪
建物情報 ■2階建 □3LDK
・オープンウィン
・リモコンニッチ
・スケルトン階段
・LDK土間スペース
・独立洗面化粧台
・2階フリースペース

※金額に付帯工事・事務費・諸経費・外構費等は含まれておりません。
所在地 福山市駅家町江良
地目 宅地
学区 駅家小学校から1.5km
交通 JR駅家駅から徒歩21分
都市計画 市街化調整区域
用途地域 -
建ぺい率 60%
容積率 200%
土地権利 所有権
地勢 平坦
制限 -
開発許可
設備 上水道・電気
引渡 相談
取引態様 売主
条件等 建築条件付

※建築条件付・・・土地売買契約締結後3ヶ月内にユキハウスと建物工事請負契約を締結する事を条件に販売します。この期間内に建物工事請負契約が締結されなかった場合、土地売買契約は白紙となり受領した手付金の金銭は全てお返しします。

[宅地-4]Image-Plan

土地価格 ¥8,350,000-
建物価格 ¥18,200,000-
(税込¥20,020,000-)
土地+建物価格 ¥26,550,000-
(税込¥28,370,000-)
敷地面積 197.16㎡/59.64坪
延床面積 105.99㎡/32.06坪
施工面積 108.28㎡/32.75坪
建物情報 ■2階建 □3LDK
・スキップフロア
・パントリー
・洗面脱衣室兼ランドリールーム
・2階トイレ

※金額に付帯工事・事務費・諸経費・外構費等は含まれておりません。
所在地 福山市駅家町近田
地目 宅地
学区 駅家西小学校から850m
交通 JR近田駅から徒歩8分
都市計画 市街化区域
用途地域 1種住居地域
建ぺい率 60%
容積率 200%
土地権利 所有権
地勢 平坦
制限 -
開発許可 -
設備 上水道・下水道・電気
引渡 相談
取引態様 売主
条件等 建築条件付

※建築条件付・・・土地売買契約締結後3ヶ月内にユキハウスと建物工事請負契約を締結する事を条件に販売します。この期間内に建物工事請負契約が締結されなかった場合、土地売買契約は白紙となり受領した手付金の金銭は全てお返しします。

[宅地-1]Image-Plan

土地価格 ¥9,800,000-
建物価格 ¥18,100,000-
(税込¥19,910,000-)
土地+建物価格 ¥27,900,000-
(税込¥29,710,000-)
敷地面積 184.34㎡/55.76坪
延床面積 102.67㎡/31.05坪
施工面積 120.99㎡/36.59坪
建物情報 ■2階建 □2LDK
・LDK造作TV台
・洗面脱衣室兼ランドリールーム
・タイルデッキ
・2階トイレ
・外部収納

※金額に付帯工事・事務費・諸経費・外構費等は含まれておりません。
所在地 岡山県井原市笹賀町18
地目 宅地
学区 出部小学校から1.7km
交通 いずえ駅より徒歩13分
都市計画 未線引き区域
用途地域 準工業地域
建ぺい率 60%
容積率 200%
土地権利 所有権
地勢 平坦
制限 宅地造成規制区域
開発許可 -
設備 電気・上水道・下水道
引渡 相談
取引態様 売主
条件等 建築条件付・建築は、住居専用もしくは、店舗兼住宅のみ

※建築条件付・・・土地売買契約締結後3ヶ月内にユキハウスと建物工事請負契約を締結する事を条件に販売します。この期間内に建物工事請負契約が締結されなかった場合、土地売買契約は白紙となり受領した手付金の金銭は全てお返しします。

[宅地-1]Image-Plan

土地価格 ¥9,000,000-
建物価格 ¥19,000,000-
(税込¥20,900,000-)
土地+建物価格 ¥28,000,000-
(税込¥29,900,000-)
敷地面積 221.88㎡/67.11坪
土地情報 2024年7月完成
延床面積 104.33㎡/31.55坪
施工面積 118.43㎡/35.82坪
建物情報 ■2階建 □3LDK
・家族用玄関
・洗面脱衣室
・LDK造作TV台
・ダイニング&スタディースペース
・パントリー
・オープン階段
・2階トイレ

※金額に付帯工事・事務費・諸経費・外構費等は含まれておりません。

[宅地-4]Image-Plan

土地価格 ¥8,000,000-
建物価格 ¥16,100,000-
(税込¥17,710,000-)
土地+建物価格 ¥24,100,000-
(税込¥25,710,000-)
敷地面積 186.43㎡/56.39坪
土地情報 2024年7月完成
延床面積 74.52㎡/22.54坪
施工面積 85.42㎡/25.84坪
建物情報 ■平屋 □2LDK
・土間収納
・勾配天井
・LDK畳コーナー
・パントリー
・洗面脱衣室兼ランドリールーム
・ファミリークローク

※金額に付帯工事・事務費・諸経費・外構費等は含まれておりません。
所在地 福山市瀬戸町大字長和1057-1・他
地目 宅地
学区 瀬戸小学校  通学距離 約800m
交通 鞆鉄バス瀬戸片山バス停より徒歩 3分
都市計画 市街化区域
用途地域 第一種住居地域
建ぺい率 60%
容積率 200%
土地権利 所有権
地勢 平坦
制限 景観法 都市再生特別措置法 宅地造成規制区域
開発許可 開発許可番号 福指令都第512号
設備 電気・上水道・下水道・プロパンガス
引渡 相談
取引態様 一般
条件等 上下水道宅内引込済、建築は居住用建物2階建てまでとします

※当社は条件付き土地4区画を販売しています

※2025年12月中旬完成予定

1.予定面積と確定面積の差が±1㎡以内は実測清算は致しません。
2.宅地3と8 に敷地内に電柱が設置されます。
3.宅地8と宅地10に電柱の支線が入ります。
4.固定資産税・都市計画税日割分担金を引渡時に清算します。
5.工事完成は、12月中旬を予定しております。但し、工事の
遅れや、完成後の諸手続きの完了が遅れ、引き渡しが遅れる
場合が有ることについて、承諾をして頂きます。
6.建築は、居住用建物2階建てまでとします。
7.その他、詳細については重説・売買契約書による
8.建築条件付き土地とは、土地売買契約締結後3か月以内
に、㈱ユキ建設と建物の建築請負契約を締結することを
条件に販売します。この期間内に建築請負契約が締結され
なかった場合は、土地売買契約は白紙となり、受領した
手付金等の金銭は全てお返しします。

宅地4

土地価格 ¥11,520,000-
敷地面積 173.13㎡/52.37坪

宅地6

土地価格 ¥10,980,000-
敷地面積 165.05㎡/49.92坪

宅地7

土地価格 ¥10,980,000-
敷地面積 164,86㎡/49.87坪